- 2012年2月6日 11:55 PM
- 「かしこい家」の性能
同業の方と話をするのは、いろんな意味で刺激になります。
先日、床暖房の話をしていたら、
「床下にエアコン入れたら、安い床暖房になるでしょ」という問いかけが・・・
「床下と言っても、結局天井高の低い居室」
CACICOの床下は、約45㎝。つまり、天井高が1/5の部屋だと思えば良い。
今回の家では、6畳程度の気積(空気の体積)がある空間。
ここの空気を積極的に暖めたら、快適なのではという訳です。
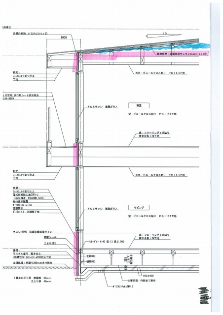
で、ここでこの家の矩計(断面図)です。
ピンクで書かれているのが、断熱ライン。
つまり、部屋も基礎も断熱の内側なので、理屈としては床下も室内空間。
次に人が住まない環境を温めるのはもったいないのでは。という疑問が出できます。
これは、「暖房」の仕組みを考える必要があります。
暖房は一般的にファンヒーターやエアコンなどを使って、暖かい空気を送り出す。という行為です。
でも、暖かい空気は上部に移動してしまう。
暖房をしても、始めは天井付近の温度が上がるだけ。
それだけならまだ良いのですが、
暖かい空気の上昇は、天井付近の冷たい空気を押し出すことになります。
押し出された冷たい空気は、下部に向かう気流(ダウンドラフト)を作り出し、
結果として、足元に流れ込みます。
これをクリアする手法の一つが、床暖房です。
床面の温度をあげるだけで、空気を温めるのでは無い。という所がポイントです。
空気を(あまり)温めないので、室内に気流が起こりづらい。
当然ながら、室温は上がりづらいですが、「頭寒足熱」の状態に近づける。
という訳です。
床暖房は、なかなかに快適な設備であるのですが、いかんせん設備に費用がかかってしまう。
そこで普通のエアコンの登場です。
部屋に付ければ、天井付近を暖めてしまうエアコンを床下に置く。
当然ながら、床下の天井を温めるのですが、言い方を変えれば一階の床を温める。
つまりエアコンが、空気を使う床暖房に変身する訳です。
エアコンは最新機能が付いていなければ、結構安く売っていますし、以前使っていたエアコンを移設するのでもOK。
これは、なかなか良いアイディアだと思うのです。
